Baue zuerst die beiden Seitenwände. Bohre dazu in beide Platten (2) jeweils 4 Schraubenlöcher auf jeder schmalen Seite mit Ø 4 mm und mit einem Abstand zum Rand der kurzen Seiten von 20 mm; die Abstände zum Rand der langen Seiten betragen 65 mm auf der einen Seite und 25 mm auf der anderen. Lege die erste Platte (2) außen bündig und mit einem Versatz von 49 mm auf die flache Seite der beiden ersten Kanthölzer (1). Verschraube die Platte mit Senkkopfschrauben 4,0x30 mm mit den Kanthölzern. Verfahre so auch mit der zweiten Platte (2) und den beiden übrigen Kanthölzern (1).
Mähroboter-Garage selber bauen
Dein Rasen wird nicht gemäht. Sondern gebändigt. Damit Dein Mähroboter vor der Witterung geschützt auf den nächsten Einsatz warten kann, bau ihm eine Mähroboter-Garage. Wie das geht, zeigen wir Dir Schritt für Schritt.

Mähroboter-Garage auf die Merkliste setzen
Damit Du möglichst schnell loslegen kannst, kannst Du das ganze Material, das Du für die Mähroboter-Garage brauchst, mit nur einem Klick auf Deine Merkliste setzen – und dort natürlich auch anpassen, falls Du z. B. Montagekleber sowieso zu Hause rumliegen hast.
Das Material für Deine Mähroboter-Garage kostet Dich 252,93 Euro
Mähroboter Garage: Das brauchst Du
Mähroboter Garage vorbereiten
Die Mähroboter-Garage bekommt ein stabiles Gehäuse aus Kanthölzern und Siebdruckplatten. Darauf werden Rhombusleisten als Verkleidung montiert. Das Garagendach wird mit Teichfolie ausgekleidet und so zur Pflanzschale. Mit einem Abfluss verhinderst Du Staunässe an den Pflanzenwurzeln.
Die Platten lassen sich am einfachsten mit einer Handkreissäge mit Führungsschiene zuschneiden. Die Kanthölzer und Rhombusleisten werden mit einer Kappsäge auf die richtige Länge zugeschnitten. Schraubverbindungen werden vorgebohrt und gesenkt, damit die Schraubenköpfe später nicht überstehen.
Streich die zugeschnittenen Kanthölzer vor dem Zusammenbau mit einem Wetter- und UV-Schutzmittel.
Garage auf Deinen Mähroboter zuschneiden
Die Bauart dieser Mähroboter-Garage muss zu Deinem Mähroboter passen. Für Mähroboter, die seitlich einparken, ist die Garage in dieser Form nicht geeignet. Auch die angegebenen Maße in dieser Bauanleitung solltest Du abgleichen, damit Dein Mähroboter mit seiner Ladestation am Ende bequem in die Mähroboter-Garage passt.
Achte beim Verlegen des Begrenzungskabels darauf, dass der Mähroboter beim Ein- und Ausparken nicht die Garage berührt.

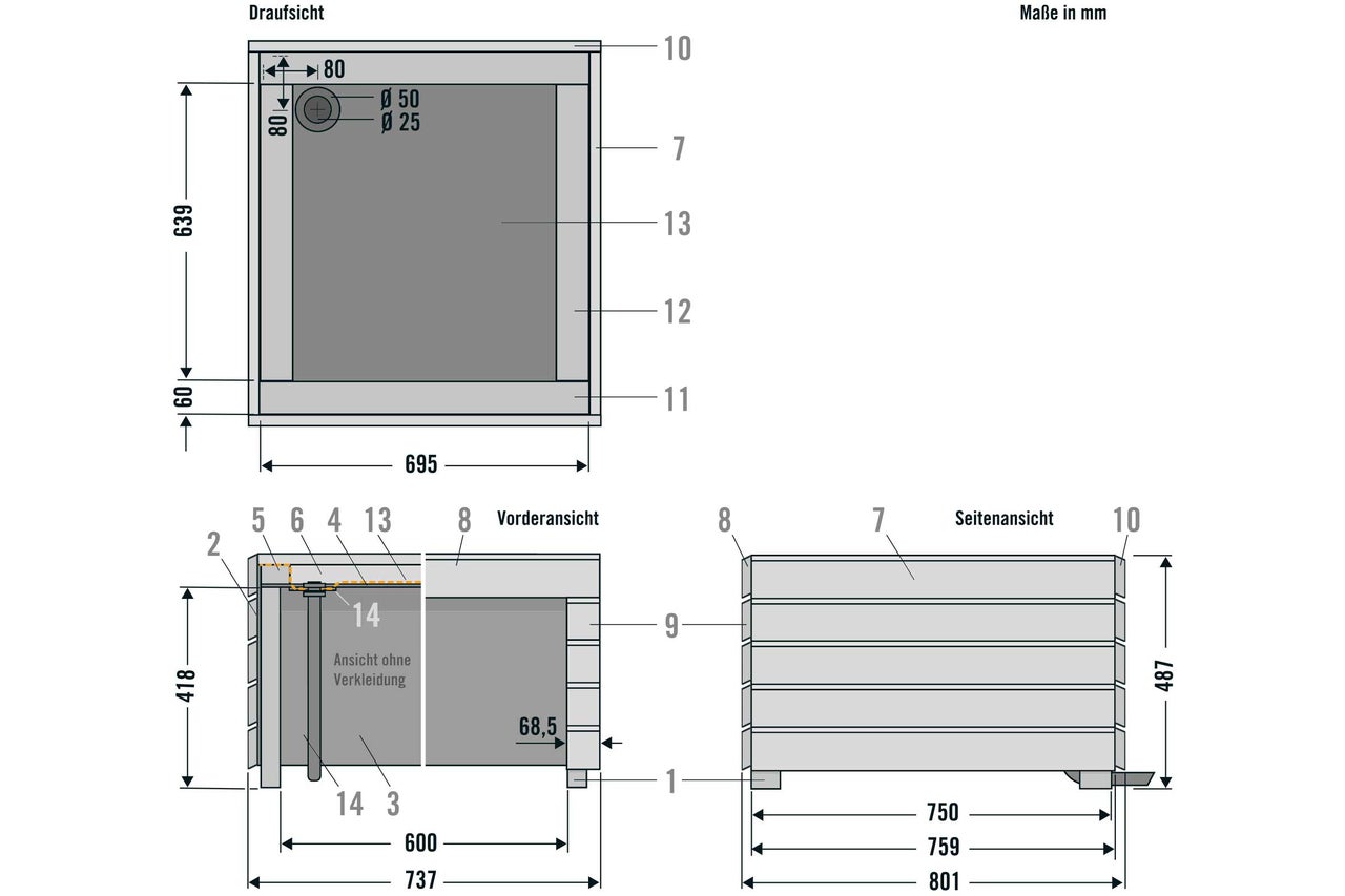
| Nr. | Stück | Materialzuschnitte |
|---|---|---|
| 1 | 4 | Kantholz 40x60x418 mm |
| 2 | 2 | Siebdrucksperrholzplatte 9x751,5x418 mm |
| 3 | 1 | Siebdrucksperrholzplatte 9x724x418 mm |
| 4 | 1 | Siebdrucksperrholzplatte 9x751,5x680 mm |
| 5 | 2 | Kantholz 40x60x751,5 mm |
| 6 | 2 | Kantholz 40x60x560 mm |
| 7 | 10 | Rhombusleiste 21,5x68x759 mm |
| 8 | 1 | Rhombusleiste 21,5x68x738 mm |
| 9 | 8 | Rhombusleiste 21,5x68x69 mm |
| 10 | 6 | Rhombusleiste 21,5x68x738 mm |
| 11 | 2 | Rhombusleiste 21,5x68x695 mm |
| 12 | 2 | Rhombusleiste 21,5x68x639 mm |
| 13 | 1 | Teichfolie 0,5x1000x1000 mm* |
| 14 | 1 | Siebdrucksperrholzplatte 9x100x100 mm |
*Endgültiger Zuschnitt bei Montage
Gehäuse bauen
Seitenwände der Mähroboter-Garage bauen
Ablauföffnung bohren und Dach montieren
An der Platte (4) wird später der Wasserablauf montiert. Bohre dazu eine Ablauföffnung mit Ø 50 mm in die Platte mit einem Abstand von jeweils 80 mm zu den zwei Außenkanten. Bohre anschließend die Schraubenlöcher mit Ø 4 mm vor mit jeweils 20 mm Abstand zu den Außenkanten.
Stell die fertigen Seitenwände mit einem Helfer auf. Richte dazwischen die Platte (4) ringsum bündig auf den Kanthölzern (1) aus. Verschraube die Platte mit Senkkopfschrauben 4,0x30 mm mit den Kanthölzern.
Gehäuserückwand der Mähroboter-Garage montieren
Nun wird die Gehäuserückwand (3) montiert. Bohre dazu rechts und links vier Schraubenlöcher mit Ø 4 mm und einem Abstand von 29 mm zur Außenkante vor. Verschraube die Rückwand mit Senkkopfschrauben 4,0x30 mm von hinten mit den Kanthölzern (1).
Rahmenhölzer verkleben & Rhombusleisten sägen
Die Rahmenhölzer (5) und (6) werden mit der Platte (4) und den Seitenwänden (2) verklebt – verwende dafür wasser- und UV-beständigen Montagekleber für den Außenbereich. Halte Dich an die Angaben zu Verarbeitung und Aushärtezeit im Datenblatt des Klebers.
Kleber aushärten lassen & Rhombusleisten zusägen
Lass den Kleber aushärten. In der Zwischenzeit können die Rhombusleisten für die Verkleidung der Seitenwände zugesägt werden (ohne Abb.). Die Leisten (7) für die beiden Seitenwände sind gleich lang. Die Leisten (8) und (9) für die Vorderseite sowie die Leisten (10) für die Rückseite überdecken die Leisten der Seitenwände.
Alternativ können die Leisten auf Gehrung, also im 45°-Winkel geschnitten und zusammengefügt werden. Für diese Verbindungstechnik werden die Längen der einzelnen Leisten an die Montageart angepasst: Breite Außenwand = Länge kurze Seite der Rhombusleiste.
Tipp zum Kleben
Zum Verkleben der Leisten kannst Du das Gehäuse auf die Seite legen.
Verkleidung der Mähroboter-Garage anbringen
Erste Rhombusleiste ankleben & Abstandhalter zuschneiden
Sind alle Rhombusleisten (7–10) zugeschnitten? Dann klebe die erste Leiste (10) mit Montagekleber auf die Rückwand, oben beginnend – die Leiste steht auf beiden Seiten und oben jeweils 21 mm über. Der obere Überstand ist nötig, weil später Leisten in dieser Stärke dahinter eingesetzt werden. Lass den Kleber mindestens zwei Stunden aushärten, dann ist eine Anfangsfestigkeit erreicht.
Rhombusleisten werden immer mit einem Leistenabstand montiert. Für die Montage der fünf Leisten benötigst Du vier Abstandhalter. Schneide die Abstandhalter aus einer 9 mm dicken MDF-Platte auf das Maß 690x40 mm zu.
Weitere Rhombusleisten ankleben
Klebe nun die vier übrigen Rhombusleisten (10) auf die Rückwand – mit je einem Abstandhalter dazwischen. So erhältst Du ohne großen Aufwand eine gleichmäßige Fläche. Lass den Kleber so lange aushärten, bis eine Anfangsfestigkeit erreicht ist und sich die Leisten nicht mehr verschieben können. Erst danach die Abstandshalter entfernen.
Seitenwände der Mähroboter-Garage verkleiden
Verkleide die beiden Seitenwände nach dem gleichen Prinzip mit den Rhombusleisten (7): oben mit 21 mm Überstand, vorne bündig mit der Gehäusevorderseite und auf Stoß mit den Leisten der Rückwand (10).
Garageneinfahrt verkleiden
Montiere die oberste Rhombusleiste (8) an der Vorderseite – sie überdeckt die seitlichen Leisten (7) auf beiden Seiten und schließt oben bündig mit ihnen ab. Wenn diese Leiste fest verklebt ist, werden die beiden Streifen neben der Garageneinfahrt verkleidet. Verklebe die kurzen Rhombusleisten (9) reihenweise mithilfe der Abstandhalter, außen bündig mit den seitlichen Leisten (7). Lass anschließend den Kleber aushärten.
Tipp: Rhombusleisten schützen
Rhombusleisten aus Lärchenholz benötigen keinen zusätzlichen Anstrich. Sie vergrauen allerdings im Laufe der Zeit. Um das zu vermeiden, können die Leisten mit einem Anstrich geschützt werden.
Entwässerung der Mähroboter-Garage vorbereiten
A) Schneide eine Holzplatte (14) mit den Maßen 100x100 mm zu und bohre mittig ein Loch mit Ø 25 mm. Setze das Schlauchanschlussstück mit der Gewindeseite von unten in die Bohrung.
B) Klebe die Holzplatte (14) mit Montagekleber von unten so an die Platte (4), dass das Schlauchanschlussstück mit dem Gewinde mittig in der Bohrung von Platte (4) sitzt. Entferne das Anschlussstück wieder, bevor der Kleber aushärtet.
Teichfolie ausbringen und Gartenschlauch anschließen
Schneide die Teichfolie (13) so groß zu, dass sie sich in die Vertiefung und seitlich über die Leisten (5) und (6) legen lässt. Fixiere die Folie mit dem Tacker auf den Leisten. Trenne anschließend die Überstände mit einem Cuttermesser ab und schneide mit einem Kreuzschnitt die Öffnung für den Ablauf in die Folie.
Verschraube nun von unten das Schlauchanschlussstück. Steck von unten ein Stück Gartenschlauch mit Schlauchklemme auf die Schlauchtülle und ziehe die Schlauchklemme handfest an. Führe den Schlauch (später) an der Rückseite nach außen.
Folienrand mit Leisten abdecken und bepflanzen
Abschließend wird der Folienrand mit einem Rahmen aus Rhombusleisten abgedeckt. Schneide die Rhombusleisten dafür mit der Tischkreissäge auf eine Breite von 60 mm zu, wobei die schrägen Kanten abgeschnitten werden – Schiebestock verwenden! Verklebe die Leisten mit der Innenseite der überstehenden Rhombusleisten.
Die Stirnseiten aller verbauten Rhombusleisten streichst Du mit der passenden Holzlasur. So wird das Holz auch an den Schnittkanten vor Witterungseinflüssen geschützt.
Das Garagendach kannst Du anschließend mit Kies und pflegeleichten Steingartenpflanzen gestalten.
Tipp: Statt Rhombusleisten Vierkantleisten nutzen
Hast Du keine Tischkreissäge zur Verfügung? Dann kannst Du für den oberen Abdeckrahmen statt der zugeschnittenen Rhombusleisten normale Vierkantleisten verwenden. Der Nachteil dabei: Das Holz ist nicht identisch mit der seitlichen Verkleidung und es muss je nach Holzart mit einer schützenden Lasur gestrichen werden.
Mähroboter Garage bepflanzen
Deine Mähroboter Garage ist fertig, jetzt kannst Du sie bepflanzen. Besonders gut geeignet sind Steingartenpflanzen. Wichtig bei Steingartenpflanzen: Mische die Erde mit etwas Sand, damit die Durchlüftung gewährleistet ist – denn die Pflanzen hassen nichts mehr als Staunässe.
Im besten Fall bepflanzt Du Deine Mähroboter Garage im Frühjahr. So haben die Pflanzen genug Zeit, bis zum nächsten Winter starke Wurzeln zu bilden.































